Description
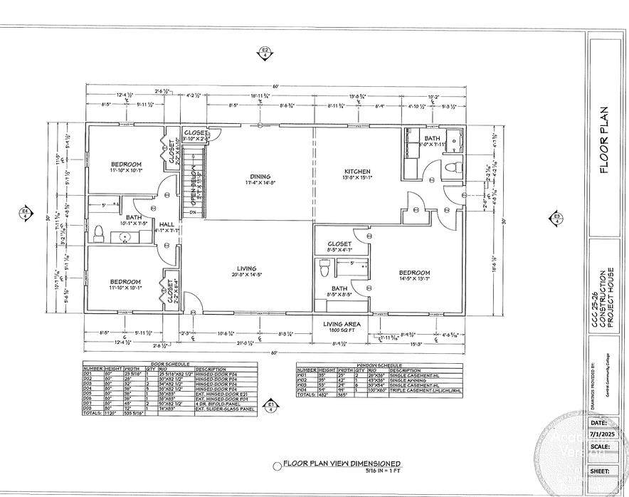
New Student Built 1800 Sq Ft Ranch Home. Crafted by Central Community College- Hastings Campus. Offered at $225,000, buyer must relocate home. This one-story, 3 bedroom and 3 bathroom Ranch style home was built as a hands-on project by students in CCC's Construction, HVAC, and Electrical Technology programs. Measuring 60'x30', it offers 1800 sq ft of open living space and custom finishes throughout. Interior highlights- open concept kitchen, dining, and living area with vaulted ceilings and display alcove. Custom-built hardwood cabinetry, laminate countertops, integrated double sink with disposal. Primary suite with walk-in closet, dual Onyx sinks, full bath with tub/shower. Additional full bath with tile-surround tub/shower + utility room bath with shower and laundry hookups. Mudroom entry near side door- ideal for future garage access. Oak trim and doors throughout, stained with Minwax. All walls primed and finished with two coats of premium paint. Exterior features- Maintenance free siding (white) and trim (smoky ash). Pella Lifestyle Series casement windows and sliding patio door- black, Low-E, aluminum-clad. Class 3 impact-rated architechural shingles (smoky ash). Aluminum soffit panels and fascia (black). House must be moved before May 30, 2026. Mechanical and electrical systems-- 200 amp electrical panel with space for future garage/basement circuits. Ceiling fans, smoke detectors, CAT 5E phone/tv wiring installed. Pre-installed HVAC ductwork and thermostat ready for future heat pump. PEX plumbing supply + Schedule 40 drainage (roughed in for easy hookup). Freeze-proof outdoor spigots. Energy Efficiency-- R-19 insulated exterior walls, R-13 interior walls for sound control. R-44 attic insulation with energy heel trusses. Spray foam insulation around windows/doors. Huber ZIP system wall and roof sheathing with sealed seams. All windows and doors prefinished for low maintenance. Important notes- Basement, HVAC system, garage, and all final utility connections are buyer's responsibility. Sale price is subject to sales tax. Concrete pad, foundation, and exterior steps are not included. Sold as is- no warranties or guarantees.
-
3BEDS
-
N/AACRES
-
3BATHS
-
01/2 BATHS
-
1,800SQFT
-
$125$/SQFT
School Ratings & Info
Description
New Student Built 1800 Sq Ft Ranch Home. Crafted by Central Community College- Hastings Campus. Offered at $225,000, buyer must relocate home. This one-story, 3 bedroom and 3 bathroom Ranch style home was built as a hands-on project by students in CCC's Construction, HVAC, and Electrical Technology programs. Measuring 60'x30', it offers 1800 sq ft of open living space and custom finishes throughout. Interior highlights- open concept kitchen, dining, and living area with vaulted ceilings and display alcove. Custom-built hardwood cabinetry, laminate countertops, integrated double sink with disposal. Primary suite with walk-in closet, dual Onyx sinks, full bath with tub/shower. Additional full bath with tile-surround tub/shower + utility room bath with shower and laundry hookups. Mudroom entry near side door- ideal for future garage access. Oak trim and doors throughout, stained with Minwax. All walls primed and finished with two coats of premium paint. Exterior features- Maintenance free siding (white) and trim (smoky ash). Pella Lifestyle Series casement windows and sliding patio door- black, Low-E, aluminum-clad. Class 3 impact-rated architechural shingles (smoky ash). Aluminum soffit panels and fascia (black). House must be moved before May 30, 2026. Mechanical and electrical systems-- 200 amp electrical panel with space for future garage/basement circuits. Ceiling fans, smoke detectors, CAT 5E phone/tv wiring installed. Pre-installed HVAC ductwork and thermostat ready for future heat pump. PEX plumbing supply + Schedule 40 drainage (roughed in for easy hookup). Freeze-proof outdoor spigots. Energy Efficiency-- R-19 insulated exterior walls, R-13 interior walls for sound control. R-44 attic insulation with energy heel trusses. Spray foam insulation around windows/doors. Huber ZIP system wall and roof sheathing with sealed seams. All windows and doors prefinished for low maintenance. Important notes- Basement, HVAC system, garage, and all final utility connections are buyer's responsibility. Sale price is subject to sales tax. Concrete pad, foundation, and exterior steps are not included. Sold as is- no warranties or guarantees.
© 2026 REALTORS® of Greater Mid-Nebraska. All rights reserved. IDX information is provided exclusively for consumers' personal, non-commercial use and may not be used for any purpose other than to identify prospective properties consumers may be interested in purchasing. Information is deemed reliable but is not guaranteed accurate by the MLS or Rooted Realty Group. Data last updated: 2026-04-15T17:36:42.8.
